︎
︎
︎
Filippo Fanciotti
Info
,
Insta
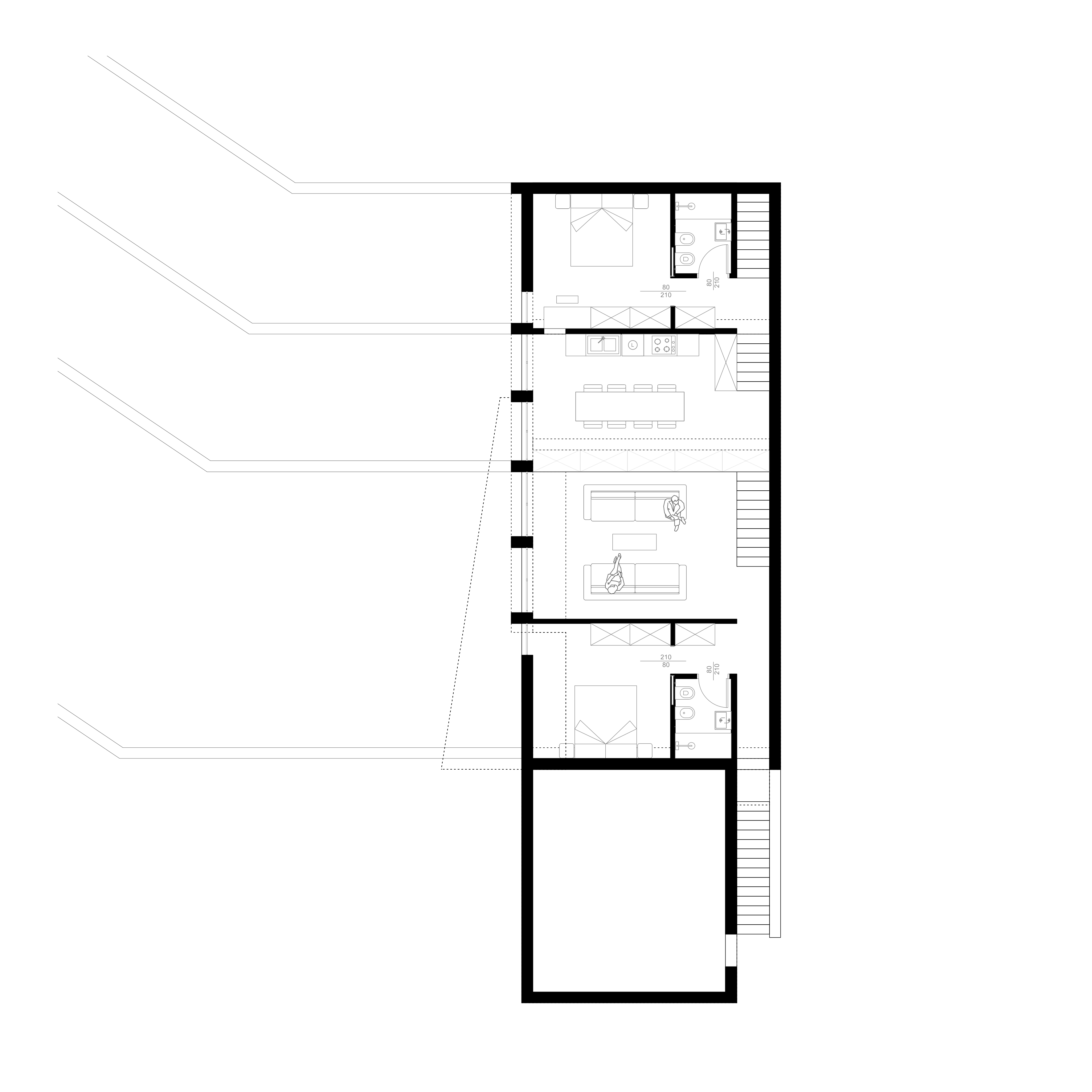
crêuza de mä
with una2 architetti associati
| client : private | Albisola . IT | 2017
Filippo Fanciotti | P. IVA : 01707310098 | Milano, Italy